Wonen in een Rijksmonument in hartje Zutphen!
Deze karaktervolle woning uit de 14e eeuw, is gelegen aan de historische Broederenkerkplein van Zutphen. De charme van de binnenstad ademt de sfeer van het Hanze verleden van de stad. Het centrum biedt een ruim aanbod van diverse winkels, restaurants en gezellige terrassen.
We geven graag een eerste indruk van deze bijzondere woning.
Begane grond:
Entree van de woning komt uit in een ruimte die zeer geschikt is als praktijkruimte of kantoor, voorzien van een prachtige marmerenvloer met vloerverwarming.
Slaapkamer aan de achterzijde van de woning met een eigen toilet, doucheruimte en wastafelmeubel. Een lichtkoepel zorgt voor een optimaal daglicht.
Via een luik is er toegang tot de gewelvenkelder (ca. 20 m2) geschikt als wijnkelder of provisieruimte.
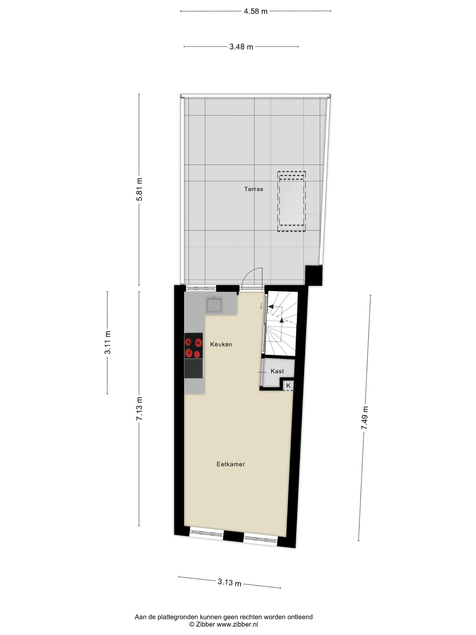
1e Verdieping:
Ruime en lichte woonkeuken. De keuken is modern uitgevoerd en voorzien van diverse inbouwapparatuur. Vanuit de keuken is er toegang tot een zeer ruim en zonnig dakterras (ca. 20 m2). Aan de voorzijde is er een fantastisch uitzicht op de Broederenkerk.
2e Verdieping:
De verdieping wordt gebruikt als woonkamer met unieke authentieke elementen.
Hier bevindt zich een tweede badkamer welke is voorzien van een douchecabine, toilet en wastafel.
3e Verdieping:
Deze open ruimte is in gebruik als een 2e slaapkamer welke is voorzien van een wastafelmeubel en inbouwkast. Aansluiting voor de wasmachine is hier ook aanwezig.
Het besloten zonnige dakterras biedt een unieke buitenervaring tussen de historische panden van de binnenstad. Een plek waar stilte en genieten van een zomeravond samenkomen.
Laat u verrassen door de indeling van de woning! Maar die zich ook nog makkelijk laat wijzigen naar eigen inzicht!
Nieuwsgierig naar dit karaktervolle woonhuis met zijn eigen authentieke sfeer?

